Stavebný
materiál
Montovaný
holodom
Murovaný
holodom
Montovaný
dom na kľúč
Murovaný
dom na kľúč
Projektová
dokumentácia
131 200 € 193 700 € 193 700 € 222 800 € 222 800 € 2 900 €

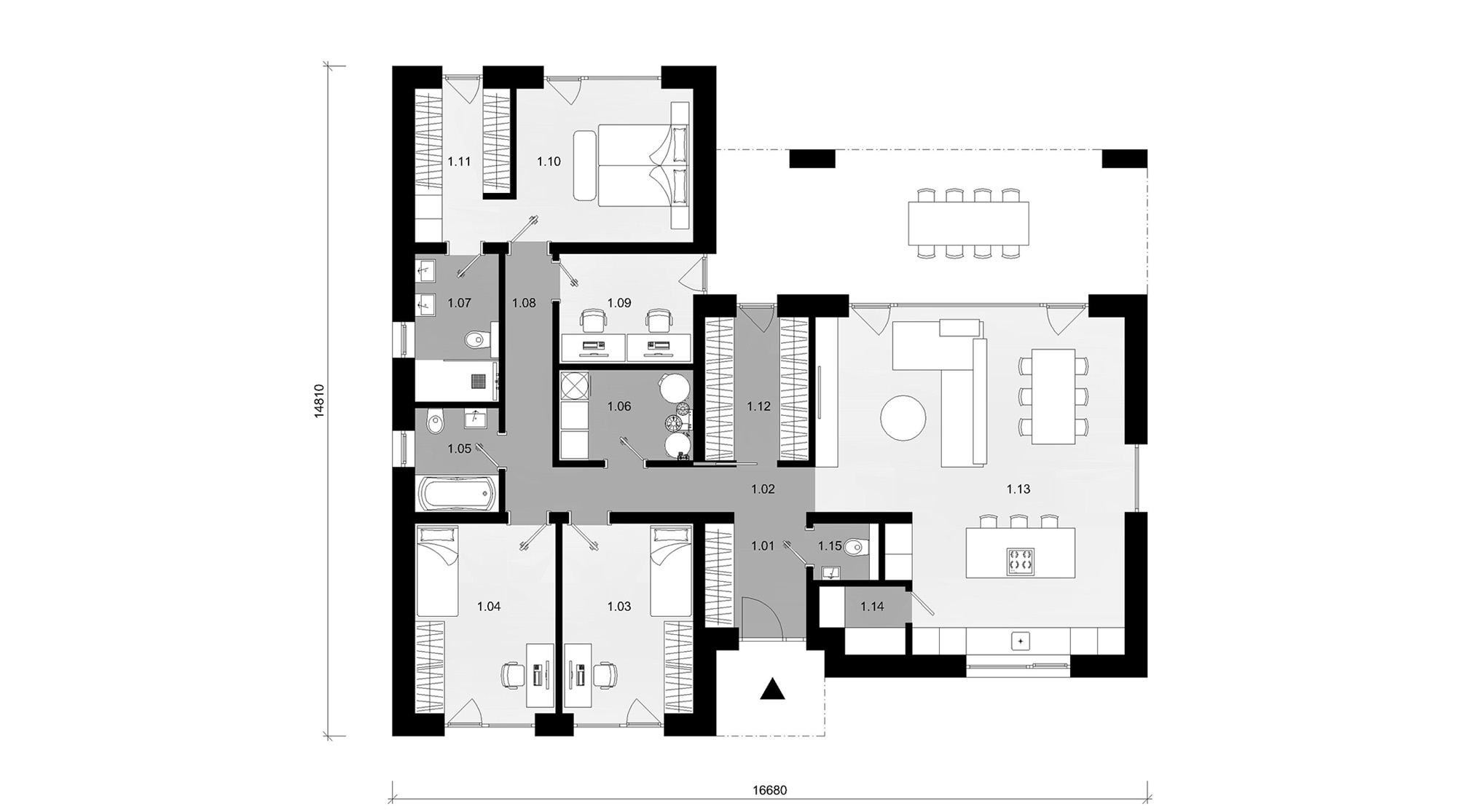
Pôdorys 1.NP

Pôdorys 1.NP
1.01Zádverie5,57 m2
1.02Chodba5,80 m2
1.03Detská izba12,18 m2
1.04Detská izba13,06 m2
1.05Kúpeľňa4,25 m2
1.06Technická miestnosť5,94 m2
1.07Kúpeľňa6,04 m2
1.08Chodba5,99 m2
1.09Pracovňa7,21 m2
1.10Spálňa14,00 m2
1.11Šatník6,48 m2
1.12Šatník7,29 m2
1.13Obývacia izba, kuchyňa, jedáleň45,03 m2
1.14Špajza2,54 m2
1.15WC1,81 m2
143,19 m2

Vizualizácia

STYLE_280_H
STYLE_280_G
STYLE_280_F
STYLE_280_E
STYLE_280_D
STYLE_280_C
STYLE_280_B
STYLE_280_A

Otázky k projektu




Páči sa Vám projekt? Objednať